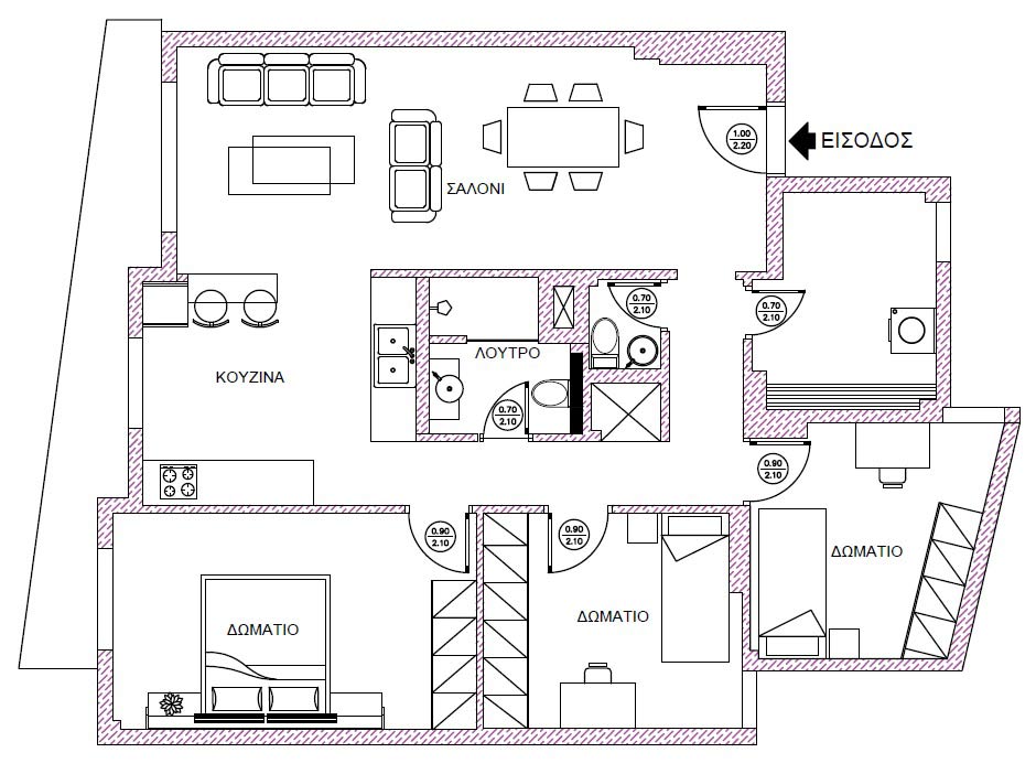
APPARTMENT RENOVATION - STR AGGELAKI Type: Renovation Client: Private Person Location: Str. Aggeliki - Thessaloniki Area: 100 sq. meters Created by: Super User − + Add to quote Location Show in Google Maps